Villa bifamiliare su unico livello
Bergamo - CavernagoCaratteristiche
Descrizione
Villa bifamiliare di nuova realizzazione – tutta su un unico livello, introvabile
In contesto residenziale tranquillo e ben servito, proponiamo villa bifamiliare di nuova realizzazione, interamente sviluppata su un unico piano, attualmente in fase di costruzione con consegna prevista entro fine 2026.
Una soluzione semplicemente introvabile, costruita da storica impresa bergamasca, sinonimo di solidità, qualità costruttiva e cura dei dettagli.
Spazi abitativi funzionali e personalizzabili
L'abitazione è progettata per offrire comfort, praticità e vivibilità quotidiana, con la possibilità di personalizzare la distribuzione interna in base alle proprie esigenze.
Composizione:
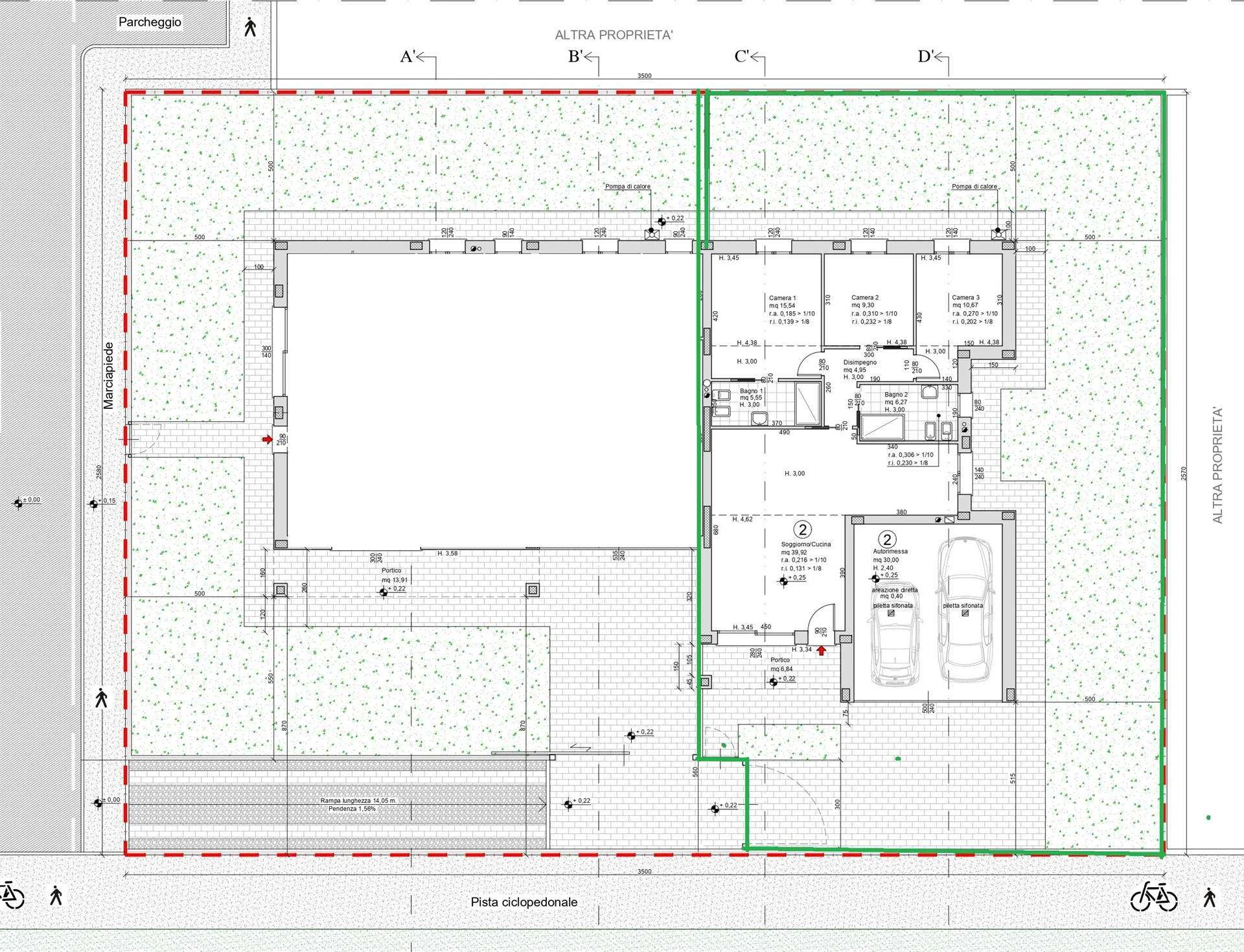
- Ampio soggiorno luminoso con travi a vista, altezza interna variabile da 3,40 m fino a 5,35 m, per una sensazione di ampiezza e respiro unico
- Zona cucina separata
- Tre camere da letto
- Due bagni
- Area esterna di circa 230 mq, disposta su tre lati della casa.
- Box doppio al piano terra di 30 mq, direttamente collegato all'abitazione
Tecnologia, comfort e risparmio energetico
La villa sarà realizzata in Classe Energetica A4, il massimo standard oggi disponibile, per garantire consumi ridotti e massimo comfort abitativo.
Dotazioni previste:
-Impianto fotovoltaico -Riscaldamento a pavimento -Raffrescamento a pavimento
- Deumidificatore -Impianto VMC (Ventilazione Meccanica Controllata) per un'aria sempre sana -Serramenti in PVC con triplo vetro -Tapparelle elettriche
Ogni dettaglio è pensato per offrire benessere, isolamento acustico, efficienza energetica e qualità della vita.
Questa nuova realizzazione rappresenta la scelta ideale per chi cerca una villa moderna, indipendente, su un unico livello e con ampio giardino, in una zona residenziale riservata ma comoda ai servizi.
Soluzioni di questo tipo sono rarissime sul mercato.
Per informazioni chiama l'ufficio di Zanica in via Libertà , 53 ( BG) al numero 035670896 o invia una mail a [email protected] Se preferisci CONTATTA O SCRIVI UN MESSAGGIO Whatsapp al numero 349 6448543 e verrai ricontattato
Mappa
Dettagli unità immobiliare
- Superficie
- 120 m²
- Superficie commerciale
- 120 m²
- Superficie
- 30 m²
- Superficie
- 230 m²
Altri immobili che potrebbero interessarti
Dicono di noi
Grazie a Unicacasa, ma soprattutto Giorgio Petroli che ci ha accompagnato fino al fine dell'acquisto con grande professionalità, serietà e disponibilità ! Raccomandiamo vivamente Unicacasa !!
Finalmente ho rogitato l'acquisto del mio appartamento , con agente immobiliare molto seri, professionali, precisi e discreti. Questo vale anche per la proprietaria vendidrice. Vi consiglio questa agenzia.
Due parole descrivono il nostro percorso con L'agenzia Unica Casa : onestà e disponibilità. Siamo stati accolti da Giorgio con un sorriso che ci ha accompagnato fino alla fine della pratica, anche in movimenti partcolarmente tristi come un lockdown e problemi personali. Consigliamo a tutti di rivolgersi a personale competente, come quello di questa agenzia, che con spiegazioni chiare ha saputo guidarci nell'acquisto della nostra prima casa.
Unica Casa ci ha accompagnato con professionalità e trasparenza, fin dall'inizio, offrendo tante soluzioni alle nostre necessità. Si sono preoccupati di proporre quello che stavamo cercando e non quello che avevamo "a portafoglio", successivamente si sono occupati di tutta la parte progettuale di ristrutturazione, dell'organizzazione e della risoluzione delle pratiche burocratiche e dei vari atti necessari, con grande professionalità e precisione. In poche parole abbiamo cambiato casa in totale relax!
La mia situazione è stata di venditrice di immobile Mi ha fatto davvero piacere la chiarezza nello spiegare le modalità di valutazione delle situazioni di mercato in atto al momento, ma anche l’efficenza nella parte operativa quando si è trattato di raccogliere la documentazione necessaria, mostrare l’immobile agli interessati e poi passare a confrontare le offerte giunte. L’efficienza è rimasta sempre presente anche nel percorso successivo per arrivare alla firma prima del preliminare e poi dell’atto notarile, accompagnata da capacità di ascolto e di gentilezza, qualità mai sgradite!
Siamo stati seguiti da Massimo Vismara è stato molto più di un agente immobiliare: con la sua gentilezza, pazienza e disponibilità ci ha accompagnati passo dopo passo, aiutandoci a superare imprevisti e ostacoli senza mai farci perdere la serenità. Grazie a lui siamo arrivati al rogito con il sorriso e tanta emozione… e ora non vediamo l’ora di avere le chiavi in mano e iniziare questa nuova avventura! Consigliamo vivamente a chi cerca una guida affidabile e umana in un passaggio così importante.
















