Rustico da ristrutturare a Vaprio d'Adda – Un'opportunità nel verde
Milano - Vaprio d'AddaCaratteristiche
Descrizione
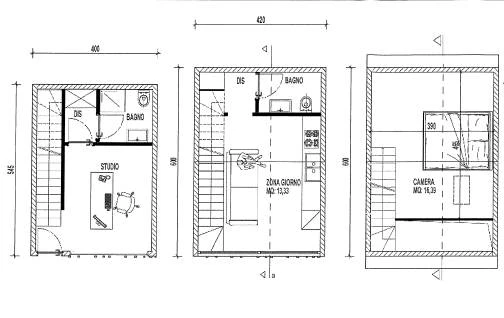
All'interno della storica Cascina Martelli, a ridosso del centro di Vaprio d'Adda, proponiamo in vendita porzione di rustico su due livelli, per un totale di 53 mq.
La proprietà si presta alla realizzazione di un accogliente bilocale con soppalco, ideale per chi desidera una casa dal carattere unico, immersa nel verde e completamente personalizzabile.
Una bozza di progetto è già disponibile per aiutare a immaginare il pieno potenziale dell'immobile.
Perfetta per investitori o per chi cerca una soluzione indipendente, con costi contenuti e in un contesto tranquillo ma vicino ai principali servizi.
Contattaci per maggiori informazioni e per fissare una visita.
Mappa
Dettagli unità immobiliare
- Superficie
- 53 m²
- Superficie commerciale
- 53 m²
Altri immobili che potrebbero interessarti
Dicono di noi
Grazie a Unicacasa, ma soprattutto Giorgio Petroli che ci ha accompagnato fino al fine dell'acquisto con grande professionalità, serietà e disponibilità ! Raccomandiamo vivamente Unicacasa !!
Finalmente ho rogitato l'acquisto del mio appartamento , con agente immobiliare molto seri, professionali, precisi e discreti. Questo vale anche per la proprietaria vendidrice. Vi consiglio questa agenzia.
Due parole descrivono il nostro percorso con L'agenzia Unica Casa : onestà e disponibilità. Siamo stati accolti da Giorgio con un sorriso che ci ha accompagnato fino alla fine della pratica, anche in movimenti partcolarmente tristi come un lockdown e problemi personali. Consigliamo a tutti di rivolgersi a personale competente, come quello di questa agenzia, che con spiegazioni chiare ha saputo guidarci nell'acquisto della nostra prima casa.
Unica Casa ci ha accompagnato con professionalità e trasparenza, fin dall'inizio, offrendo tante soluzioni alle nostre necessità. Si sono preoccupati di proporre quello che stavamo cercando e non quello che avevamo "a portafoglio", successivamente si sono occupati di tutta la parte progettuale di ristrutturazione, dell'organizzazione e della risoluzione delle pratiche burocratiche e dei vari atti necessari, con grande professionalità e precisione. In poche parole abbiamo cambiato casa in totale relax!
La mia situazione è stata di venditrice di immobile Mi ha fatto davvero piacere la chiarezza nello spiegare le modalità di valutazione delle situazioni di mercato in atto al momento, ma anche l’efficenza nella parte operativa quando si è trattato di raccogliere la documentazione necessaria, mostrare l’immobile agli interessati e poi passare a confrontare le offerte giunte. L’efficienza è rimasta sempre presente anche nel percorso successivo per arrivare alla firma prima del preliminare e poi dell’atto notarile, accompagnata da capacità di ascolto e di gentilezza, qualità mai sgradite!
Siamo stati seguiti da Massimo Vismara è stato molto più di un agente immobiliare: con la sua gentilezza, pazienza e disponibilità ci ha accompagnati passo dopo passo, aiutandoci a superare imprevisti e ostacoli senza mai farci perdere la serenità. Grazie a lui siamo arrivati al rogito con il sorriso e tanta emozione… e ora non vediamo l’ora di avere le chiavi in mano e iniziare questa nuova avventura! Consigliamo vivamente a chi cerca una guida affidabile e umana in un passaggio così importante.




