Appartamento in Vendita a Vaprio d'Adda
Milano - Vaprio d'AddaCaratteristiche
Descrizione
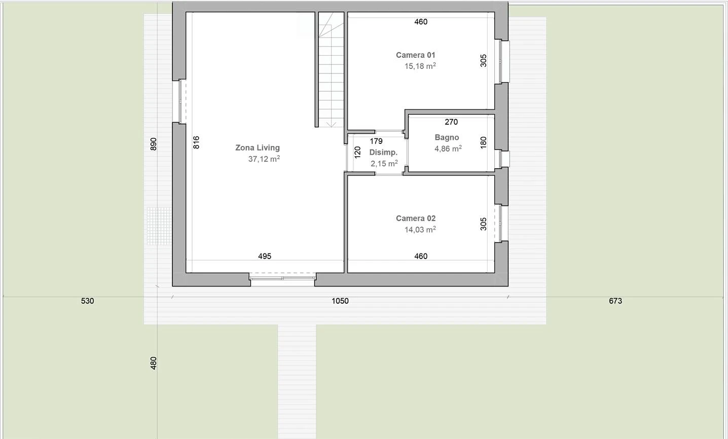
In elegante palazzina di poche unità, situata a cinque minuti di auto da Vaprio in una zona tranquilla ed immersa nel verde, ben collegata al centro e ai principali servizi, proponiamo splendido Trilocale al piano terra, con doppi servizi, taverna, giardino su tre lati e box doppio in lunghezza
L'immobile si distingue per ambienti ampi e luminosi, finiture di pregio e un'elevata efficienza energetica. il comfort abitativo è garantito dal riscaldamento a pavimento, impianto di condizionamento, tecnologia gas free e pannelli fotovoltaici con accumulo, per un notevole risparmio sulle spese di gestione e un minore impatto ambientale.
un opportunità imperdibile per chi cerca qualità, spazio e innovazione in contesto esclusivo
Mappa
Dettagli unità immobiliare
- Superficie
- 95 m²
- Superficie commerciale
- 95 m²
- Superficie
- 28 m²
- Superficie
- 215 m²
Altri immobili che potrebbero interessarti
Dicono di noi
Con Unica Casa abbiamo finalmente, dopo tanti anni, trovato la casa che fa per noi. Con Massimo abbiamo instaurato un rapporto di totale fiducia, è sempre stato molto disponibile e da subito abbiamo capito che ci avrebbe seguito nel migliore dei modi. Ho già iniziato a consigliare l'agenzia ai conoscenti che cercano casa, una delle poche davvero affidabili!
Molto contenta dell'intermedizione immobiliare ricevuta dal Sig. Massimo, gentile, cortese, disponibile e efficiente. Consiglio vivamente
Io e mia moglie eravamo alla ricerca della casa dei nostri sogni dove far crescere nostro figlio. Grazie a Giorgio ci siamo sentiti sempre supportati, ha ascoltato le nostre richieste, ci ha fatto vedere varie tipologie di case sino a quando non ha fatto centro. Ma il bello di aver trovato unicasa è che non si limitano a trovarti l'immobile ma ti seguono passo dopo passo in tutte le faccende burocratiche e come ciliegina sulla torta hanno anche l'ottimo architetto Giampaolo che ci ha fatto il progetto per la planimetria dell'appartamento superando le nostre aspettative... Ed è tutto compreso!! Ho visto un po' di agenti immobiliari e credetemi con unicasa è tutto un altro mondo.
Ho Comperato casa con agenzia unica casa mi sono trovata bene, lo staff molto gentile e professionale. Un ringraziamento a Massimo che mi ha seguita personalmente accompagnandomi fino al rogito. Grazie
Nella veloce assistenza da parte dell’agenzia si è sempre avuta la percezione di assistenza, cordialità e professionalità che ritengo ci si aspetti in questi momenti. Chiari e precisi nella comunicazione delle informazioni e disponibili a ogni richiesta.
Ho avuto il piacere di affidarmi a Massimo di UNICA CASA per l’acquisto della mia casa e non posso che esprimere il massimo apprezzamento per la sua professionalità e disponibilità. Fin dal primo incontro si è dimostrato estremamente competente, puntuale e attento a ogni dettaglio, guidandomi con chiarezza e trasparenza in tutte le fasi della trattativa. La sua cordialità e il modo con cui si relaziona rendono l’intero processo molto più sereno. Consiglio vivamente Massimo e UNICA CASA a chiunque cerchi un agente immobiliare affidabile, serio e appassionato del proprio lavoro. Un vero punto di riferimento!





