Ampio e Luminoso Trilocale con doppi Servizi, Cantina e Box
Bergamo - Fara Gera d'AddaCaratteristiche
Descrizione
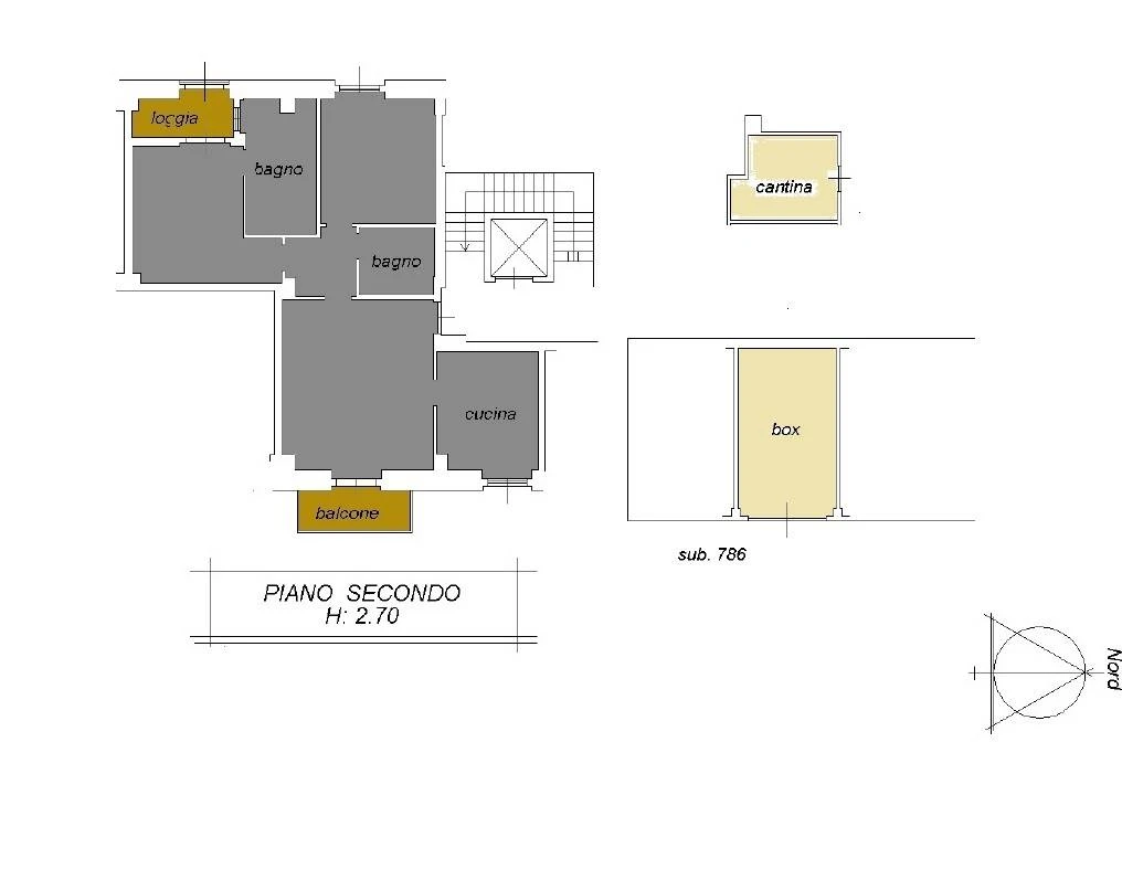
Nelle immediate vicinanze del centro, AMPIO e luminoso appartamento posto al secondo piano, servito da ASCENSORE!! L'immobile gode della doppia esposizione ed è dotato di signorili serramenti ad arco, che donano agli ambienti, un'ottima luce naturale!! Dalla porta blindata si accede al soggiorno con BALCONE e alla cucina ABITABILE. dal disimpegno si entra nella zona notte interamente pavimentata in PARQUET!! il primo bagno PADRONALE, attrezzata della VASCA, è posto all'interno della camera MATRIMONIALE dove trova sfogo, l'utile LOGGIA coperta. La seconda camera da letto è decisamente vivibile e nel disimpegno è collocato il SECONDO bagno di servizio dotato di DOCCIA! La grande cantina ed il BOX auto, sono accessibili direttamente al piano interrato tramite l'ascensore!! La soluzione immobiliare è in buone condizioni e non presenta ulteriori lavori da affrontare!!! libero e PRONTO DA ABITARE !!
Per informazioni Tel. 0363.70.54.95 UNICA CASA via dei palass 8/3 Fara Gera d'Adda
Scopri IL NUOVO MODO DI TROVARE CASA ! Con il nostro servizio Pack Valore Certo Flex se ci dai FIDUCIA noi ti PREMIAMO ! Lo trovi solo alla UNICA CASA! Visita il nostro sito internet www.unicacasa.it
Per informazioni chiama l'ufficio di Fara Gera d'Adda , 8/3 ( BG) al numero 0363705495 o invia una mail a [email protected]
Se preferisci SCRIVI UN MESSAGGIO WhatsApp al numero 366 4255581 e verrai ricontattato dall'Agente che segue la vendita!!
Mappa
Dettagli unità immobiliare
- Superficie
- 105 m²
- Superficie commerciale
- 105 m²
- Superficie
- 17 m²
- Superficie
- 4 m²
- Superficie
- 9 m²
Altri immobili che potrebbero interessarti
Dicono di noi
Grazie a Unicacasa, ma soprattutto Giorgio Petroli che ci ha accompagnato fino al fine dell'acquisto con grande professionalità, serietà e disponibilità ! Raccomandiamo vivamente Unicacasa !!
Finalmente ho rogitato l'acquisto del mio appartamento , con agente immobiliare molto seri, professionali, precisi e discreti. Questo vale anche per la proprietaria vendidrice. Vi consiglio questa agenzia.
Due parole descrivono il nostro percorso con L'agenzia Unica Casa : onestà e disponibilità. Siamo stati accolti da Giorgio con un sorriso che ci ha accompagnato fino alla fine della pratica, anche in movimenti partcolarmente tristi come un lockdown e problemi personali. Consigliamo a tutti di rivolgersi a personale competente, come quello di questa agenzia, che con spiegazioni chiare ha saputo guidarci nell'acquisto della nostra prima casa.
Unica Casa ci ha accompagnato con professionalità e trasparenza, fin dall'inizio, offrendo tante soluzioni alle nostre necessità. Si sono preoccupati di proporre quello che stavamo cercando e non quello che avevamo "a portafoglio", successivamente si sono occupati di tutta la parte progettuale di ristrutturazione, dell'organizzazione e della risoluzione delle pratiche burocratiche e dei vari atti necessari, con grande professionalità e precisione. In poche parole abbiamo cambiato casa in totale relax!
La mia situazione è stata di venditrice di immobile Mi ha fatto davvero piacere la chiarezza nello spiegare le modalità di valutazione delle situazioni di mercato in atto al momento, ma anche l’efficenza nella parte operativa quando si è trattato di raccogliere la documentazione necessaria, mostrare l’immobile agli interessati e poi passare a confrontare le offerte giunte. L’efficienza è rimasta sempre presente anche nel percorso successivo per arrivare alla firma prima del preliminare e poi dell’atto notarile, accompagnata da capacità di ascolto e di gentilezza, qualità mai sgradite!
Siamo stati seguiti da Massimo Vismara è stato molto più di un agente immobiliare: con la sua gentilezza, pazienza e disponibilità ci ha accompagnati passo dopo passo, aiutandoci a superare imprevisti e ostacoli senza mai farci perdere la serenità. Grazie a lui siamo arrivati al rogito con il sorriso e tanta emozione… e ora non vediamo l’ora di avere le chiavi in mano e iniziare questa nuova avventura! Consigliamo vivamente a chi cerca una guida affidabile e umana in un passaggio così importante.

























